合肥鉆客甜品店
| 項目名稱 | 合肥鉆客甜品店 | 行業屬性 | 酒店/餐飲/會所 |
| 項目地址 | 合肥包河大道九瓏灣商業街 | 項目造價 | 9萬 |
| 主關鍵詞 |
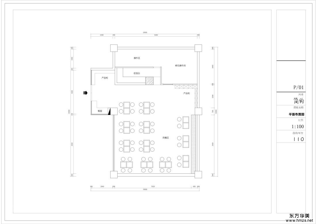
▄原建筑結構分析: 此案例是一家蛋糕甜品店,店內還有飲料酒水,客戶要求要盡量合理利用每一處空間。
▄設計需求: 設計師在設計時要充分考慮空間的合理布局,吧臺、酒柜、儲藏空間等等都要規劃出來,而又不能讓整個空間看起來擁擠。
▄設計風格定位: 本案例風格上偏意式風情,濃厚溫馨的色調、復古的家具、個性的吊頂,當然還有歷史性的紋理磚。除了經營蛋糕面包外還配有經典水吧,特色茶點系列。陳舊古樸的設計風格,讓這家蛋糕店有著自己的故事。燈光永遠都是店面的靈魂導師,不同的區域配合不同的燈光,更能體現店面的豐富多彩。


北京鑄誠大廈辦公裝修工程
北京銀河SOHO辦公裝修工程
301醫院裝修工程
