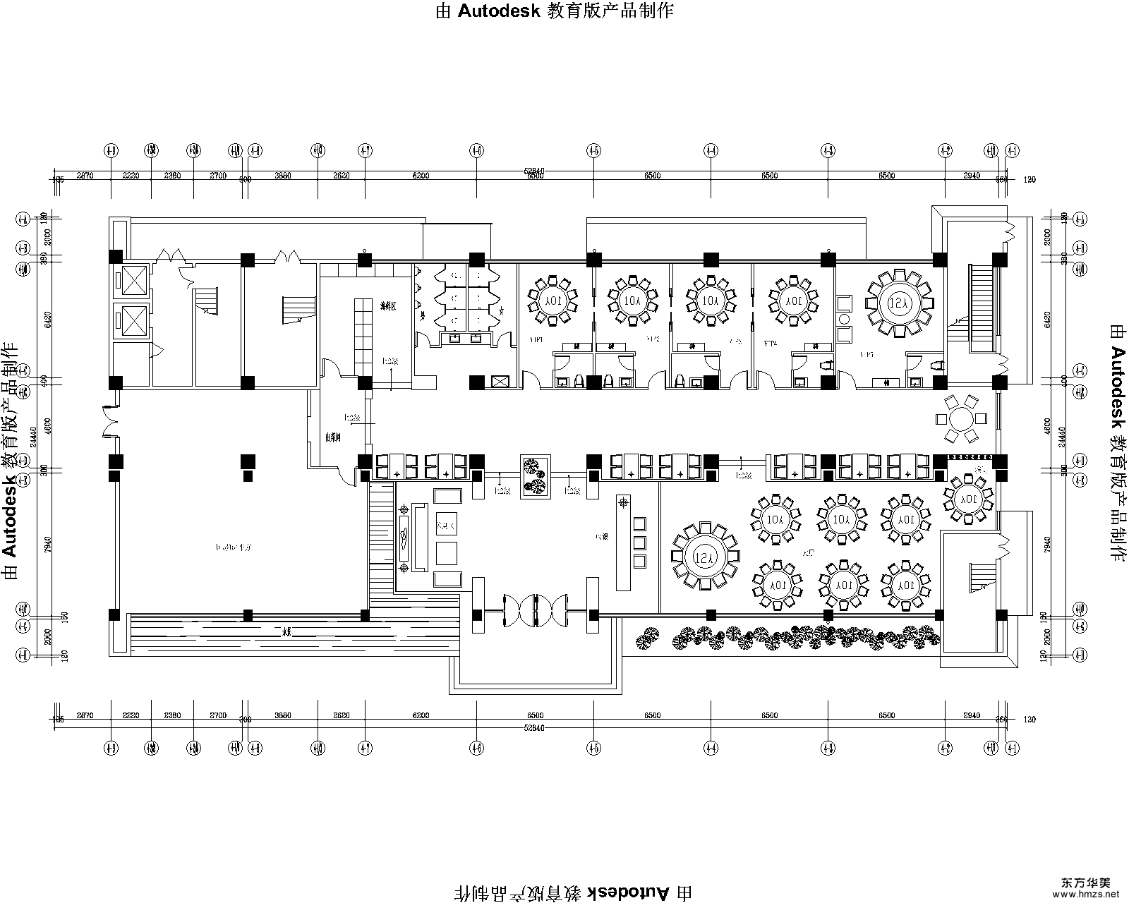
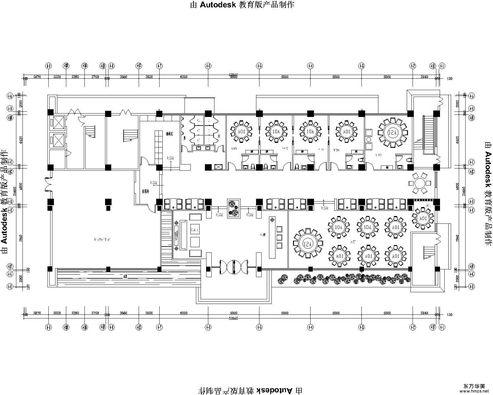
麗恩酒店裝修工程
| 項目名稱 | 麗恩酒店裝修工程 | 行業屬性 | 酒店/餐飲/會所 |
| 項目地址 | 北京市東城區新中西街甲3號 | 項目造價 | 270.0萬 |
| 主關鍵詞 |
▄原建筑結構分析: 設計師將客房設計的溫暖舒適,給予了客人最好的關懷,同時又不失商務套間中所需的嚴謹與大氣,創造十分明快清新的效果,極具吸引力。
▄設計需求: 設計師將客房設計的溫暖舒適,給予了客人最好的關懷,同時又不失商務套間中所需的嚴謹與大氣
▄設計風格定位: 通過墻面、地面、家具中木色的運用體現出了一種設計秩序的明快感,并通過線型的色彩、大小、粗細、深淺和造型來體現變化、傳達設計語言,體現出充滿理性的視覺組合和虛實關系,創造十分明快清新的效果,極具吸引力。


北京鑄誠大廈辦公裝修工程
北京銀河SOHO辦公裝修工程
301醫院裝修工程
